
Renovating a Cafe from scratch to its completed design is an exciting journey.
Before the renovation process begins, the Cafe is a blank canvas, devoid of any specific theme or style. The primary focus during this stage is to lay the foundation for a welcoming and functional space.
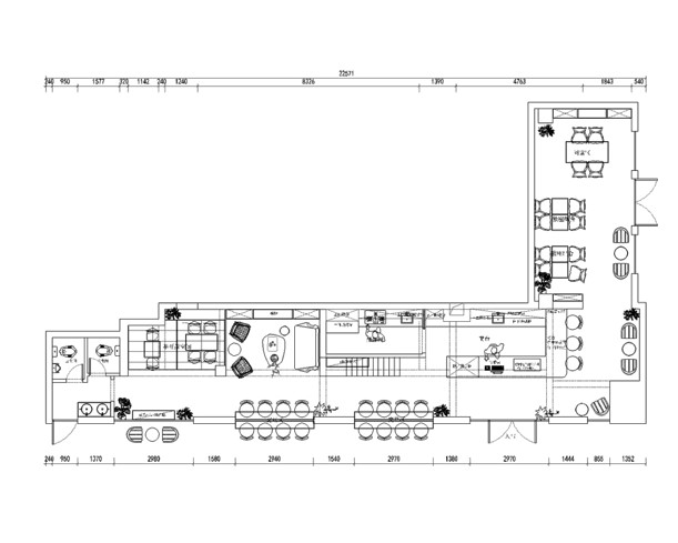
1. Space Planning: Architects and designers carefully analyze the Cafe’s layout, taking into account the available space and the desired seating capacity. They create a floor plan that optimizes flow and ensures comfortable movement for both staff and customers.

2. Lighting: The before renovation stage involves assessing the natural light sources within the Cafe and determining if additional lighting fixtures are necessary. Proper lighting is crucial in creating a warm and inviting ambiance.
3. Essential Utilities: During this stage, the plumbing, electrical, and HVAC systems are installed or upgraded to meet the Cafe’s requirements. Attention is given to ensuring energy efficiency and sustainability.
After completing the basic renovation process, the Cafe undergoes a stunning transformation. We began to reflect specific themes or styles related to the coffee shop and target audience through furniture decoration.
1. Theme and Interior Design: The Cafe’s design concept is carefully curated, taking into consideration factors such as target customers, location, and market trends. The interior design elements, including furniture, color schemes, wall decoration, and flooring, are chosen to create a cohesive and appealing ambiance.
2. Brand Identity: The renovation process presents an opportunity to enhance the Cafe’s brand identity. Elements such as logo placement, menu boards, and staff uniforms are designed to align with the Cafe’s overall image, creating a memorable experience for customers.
3. Unique Features: To stand out in a competitive market, the after renovation interior space may incorporate unique features. These could include creative seating arrangements, a dedicated area for live music performances, or an art gallery corner. Such additions contribute to the Cafe’s character and draw in a diverse customer base.
ZoomRoom Designs has been inspiring people to create inviting, comfortable surroundings that reflect their unique sense of style. Our mission is simple,Bring your style to life with our delightful home furnishings and help you ensure the possibility of carrying out your design plans.